Selection of technical draftings for scenic pieces in theatrical productions and small scale stop motion sets.
Front Elevation of Main Portal for 110 In The Shade.
Drafting plate for bandstand unit in 110 In The Shade.
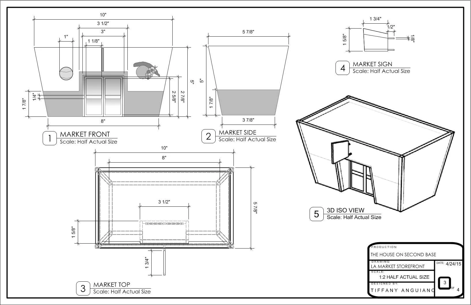
Drafting plate for stop motion animation set in The House On Second Base
Auto Shop drafting plate for stop motion animation set
Drafting plate for stop motion animation church set.
Drafting plate for a store building for a stop motion animation set

 
            